Espace propriétaire
fr

Votre recherche

Vendu
Lyon (69003)

3 pièces - 70 m²

EXCLUSIVITE / Place Danton - Lyon 03 / Appartement T3 de 70m2 avec balcon et garage

Ref : VAV97643
Découvrir le bien

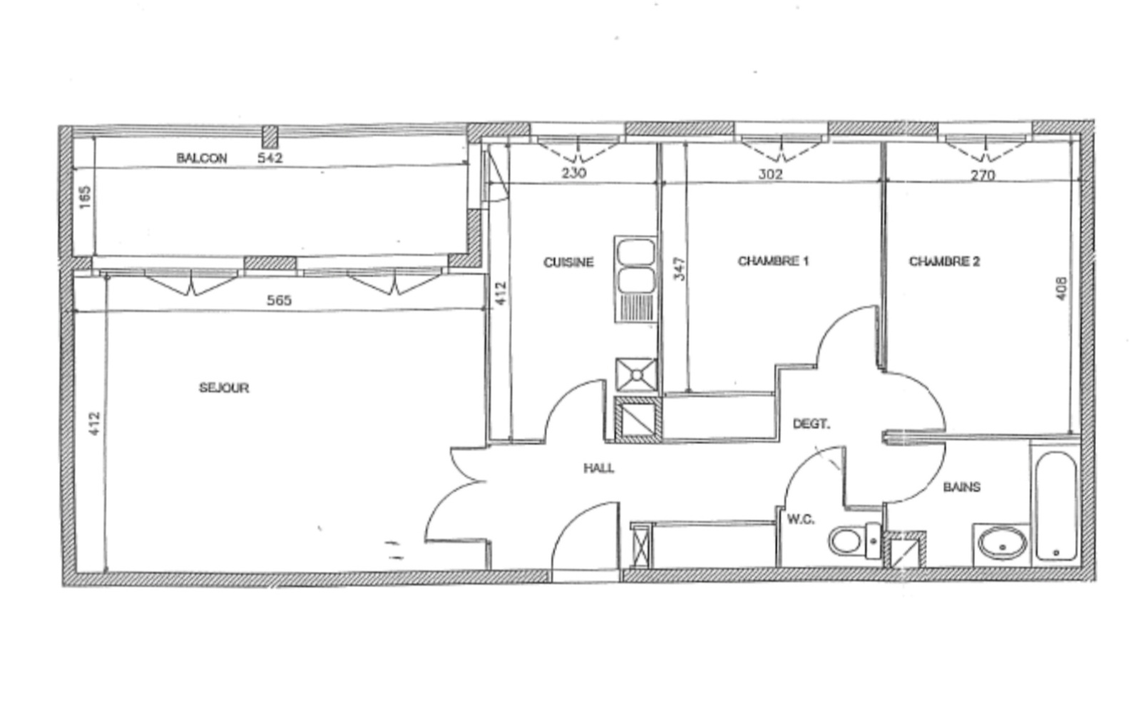
Place Danton - Lyon 03 / Dans un bel immeuble de 2001, appartement T3 de 70m2 entièrement rénové en étage avec ascenseur. Grand séjour en parquet donnant sur balcon de 8m2 sans aucun vis à vis et exposé Ouest. Cuisine indépendante meublée et équipée. Coin nuit composé de 2 chambres de 11m2 avec placards de rangement. Salle de bain et Wc séparé. Possibilité d'achat d'un grand garage box fermé en sous sol en supplément. Emplacement idéal, à proximité des écoles des commerces et transports en commun (gare Lyon Part-Dieu à moins de 10min à pied, métro, tram, train...etc). Appartement au calme, lumineux et sans aucun vis à vis. Nbres de lot: / . charges annuelles: 1680€ (eau froide et entretien chaudière inclus). Aucune procédure en cours. Prix de vente affiché frais d'agence inclus, honoraires à la charge des vendeurs. Contact: Alexis Verbrugge 06 01 32 93 48.

TRAD_ZEPHYR_Caracteristique TRAD_ZEPHYR_Valeurs
Code postal 69003
Surface loi Carrez (m²) 70 m²
Nombre de chambre(s) 2
Nombre de pièces 3
Etage 3
Ascenseur OUI
TRAD_ZEPHYR_Caracteristique TRAD_ZEPHYR_Valeurs
Nb de salle de bains 1
Cuisine Séparée
Type de cuisine Equipée
Mode de chauffage Gaz
Type de chauffage Radiateur
Format de chauffage Individuel
Balcon OUI
Nombre de garage 1
Exposition Ouest
Année de construction 2001
TRAD_ZEPHYR_Caracteristique TRAD_ZEPHYR_Valeurs
Copropriété OUI
Quote Part annuelle des charges 1 680 €
TRAD_ZEPHYR_Caracteristique TRAD_ZEPHYR_Valeurs
Les honoraires d'agence seront intégralement à la charge du vendeur  
Charges 140 €
Taxe foncière annuelle 1 100 €
Rez de chaussée
salon/sejour 24 m²

chambre 10 m²

chambre 11 m²

chambre 11 m²

balcon 8 m²

DPE GES
Contacter pour ce bien
L'agence
Téléphone 04 69 84 15 15
Adresse
19 rue des Rosiéristes 69410 Champagne-au-Mont-d'Or

* Champ obligatoire

Les informations recueillies sur ce formulaire sont enregistrées dans un fichier informatisé par La Boite Immo agissant comme Sous-traitant du traitement pour la gestion de la clientèle/prospects de l'Agence / du Réseau qui reste Responsable du Traitement de vos Données personnelles. La base légale du traitement repose sur l'intérêt légitime de l'Agence / du Réseau. Elles sont conservées jusqu'à demande de suppression et sont destinées à l'Agence / au Réseau. Conformément à la loi « informatique et libertés », vous disposez des droits d’accès, de rectification, d’effacement, d’opposition, de limitation et de portabilité de vos données. Vous pouvez retirer votre consentement à tout moment en contactant directement l’Agence / Le Réseau. Consultez le site https://cnil.fr/fr pour plus d’informations sur vos droits. Si vous estimez, après avoir contacté l'Agence / le Réseau, que vos droits « Informatique et Libertés » ne sont pas respectés, vous pouvez adresser une réclamation à la CNIL. Nous vous informons de l’existence de la liste d'opposition au démarchage téléphonique « Bloctel », sur laquelle vous pouvez vous inscrire ici : https://www.bloctel.gouv.fr Dans le cadre de la protection des Données personnelles, nous vous invitons à ne pas inscrire de Données sensibles dans le champ de saisie libre.
Ce site est protégé par reCAPTCHA, les Politiques de Confidentialité et les Conditions d'Utilisation de Google s'appliquent.

Découvrir nos outils