Espace propriétaire
fr

Votre recherche

Prix en baisse
Dardilly (69570)

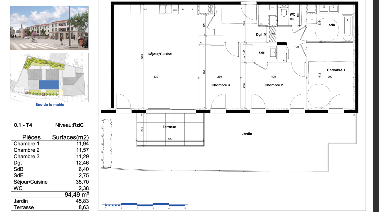
4 pièces - 95 m²

Dardilly, T4 de 95 m2 avec jardin.

400 000 €
Ref : CAVAP350004879
Découvrir le bien

Appartement T4 – Un cadre de vie idéal avec jardin et terrasse !

Située à Dardilly, cette appartement T4 de 94,49 m² offre un environnement calme et agréable, parfait pour une vie de famille.

Ses atouts :
Une pièce de vie spacieuse de 36 m² avec cuisine ouverte
3 chambres confortables .
Une salle de bain + une salle d’eau pour plus de confort
Un WC indépendant

Extérieur : Profitez d’un jardin de 46 m² et d’une terrasse pour des moments de détente en plein air.

Un garage en sous sol et une cave .

Charge de copropriété : Environ 140 euros par mois.

Surface : 95 m²

Prix du bien : 400 000 € Honoraires à la charge du vendeur FRAIS DE NOTAIRE REDUIT

Contactez dès à présent Adrien Clerc Tel o6/22/98/94/36.

Statut négociateur : Agent commercial.

Prix de vente affiché frais d'agence inclus,honoraires à la charge du vendeur.

TRAD_ZEPHYR_Caracteristique TRAD_ZEPHYR_Valeurs
Code postal 69570
Surface loi Carrez (m²) 95 m²
Nombre de chambre(s) 3
Nombre de pièces 4
Ascenseur OUI
TRAD_ZEPHYR_Caracteristique TRAD_ZEPHYR_Valeurs
Nb de salle de bains 1
Cuisine Américaine
Type de cuisine Equipée
Mode de chauffage Gaz
Type de chauffage Radiateur
Format de chauffage Individuel
Terrasse OUI
Nombre de garage 1
Cave OUI
Année de construction 2020
TRAD_ZEPHYR_Caracteristique TRAD_ZEPHYR_Valeurs
Copropriété OUI
nombre de lots 78
TRAD_ZEPHYR_Caracteristique TRAD_ZEPHYR_Valeurs
Prix de vente 400 000 €
Les honoraires d'agence seront intégralement à la charge du vendeur  
DPE GES
Contacter pour ce bien
L'agence
Téléphone 04 69 84 15 15
Adresse
19 rue des Rosiéristes 69410 Champagne-au-Mont-d'Or

* Champ obligatoire

Les informations recueillies sur ce formulaire sont enregistrées dans un fichier informatisé par La Boite Immo agissant comme Sous-traitant du traitement pour la gestion de la clientèle/prospects de l'Agence / du Réseau qui reste Responsable du Traitement de vos Données personnelles. La base légale du traitement repose sur l'intérêt légitime de l'Agence / du Réseau. Elles sont conservées jusqu'à demande de suppression et sont destinées à l'Agence / au Réseau. Conformément à la loi « informatique et libertés », vous disposez des droits d’accès, de rectification, d’effacement, d’opposition, de limitation et de portabilité de vos données. Vous pouvez retirer votre consentement à tout moment en contactant directement l’Agence / Le Réseau. Consultez le site https://cnil.fr/fr pour plus d’informations sur vos droits. Si vous estimez, après avoir contacté l'Agence / le Réseau, que vos droits « Informatique et Libertés » ne sont pas respectés, vous pouvez adresser une réclamation à la CNIL. Nous vous informons de l’existence de la liste d'opposition au démarchage téléphonique « Bloctel », sur laquelle vous pouvez vous inscrire ici : https://www.bloctel.gouv.fr Dans le cadre de la protection des Données personnelles, nous vous invitons à ne pas inscrire de Données sensibles dans le champ de saisie libre.
Ce site est protégé par reCAPTCHA, les Politiques de Confidentialité et les Conditions d'Utilisation de Google s'appliquent.

Découvrir nos outils