Espace propriétaire
fr

Votre recherche

Saint-Romain-de-Popey (69490)

791 m²

Terrain à bâtir de 791m2 / Rte de Savigny - St Romain de Popey

130 000 €
Ref : VA667
Découvrir le bien

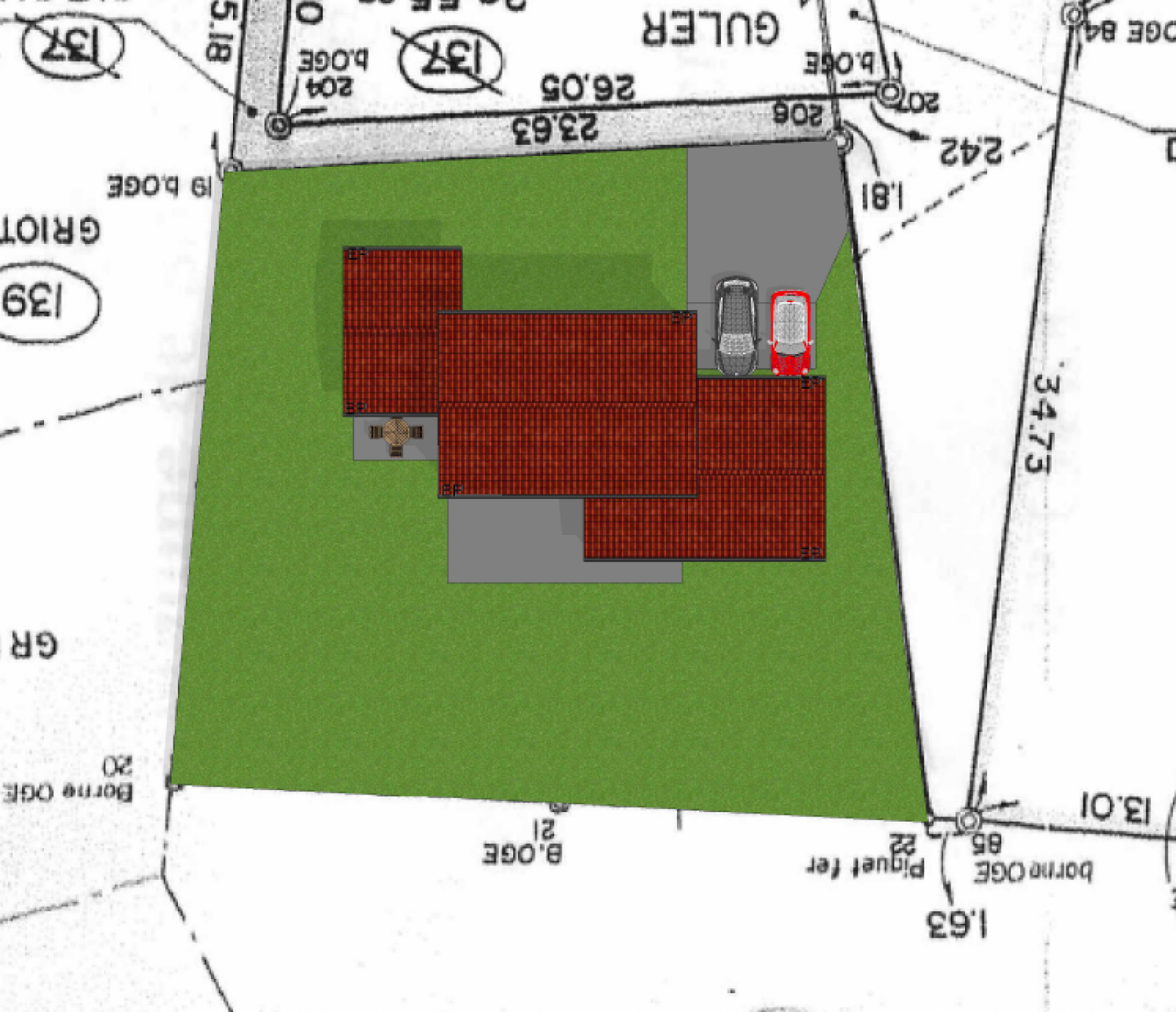
EXCLUSIVITE / Rte de Savigny - St Romain de Popey / Terrain à bâtir de 791m2 en retrait de la route de Savigny et très proche du centre du village.

Viabilisation à prévoir.

Certificat d'urbanisme obtenu pour une maison avec une emprise au sol possible de 150m2 donc 300m2 habitable.

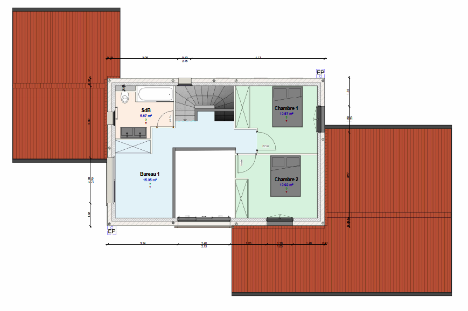
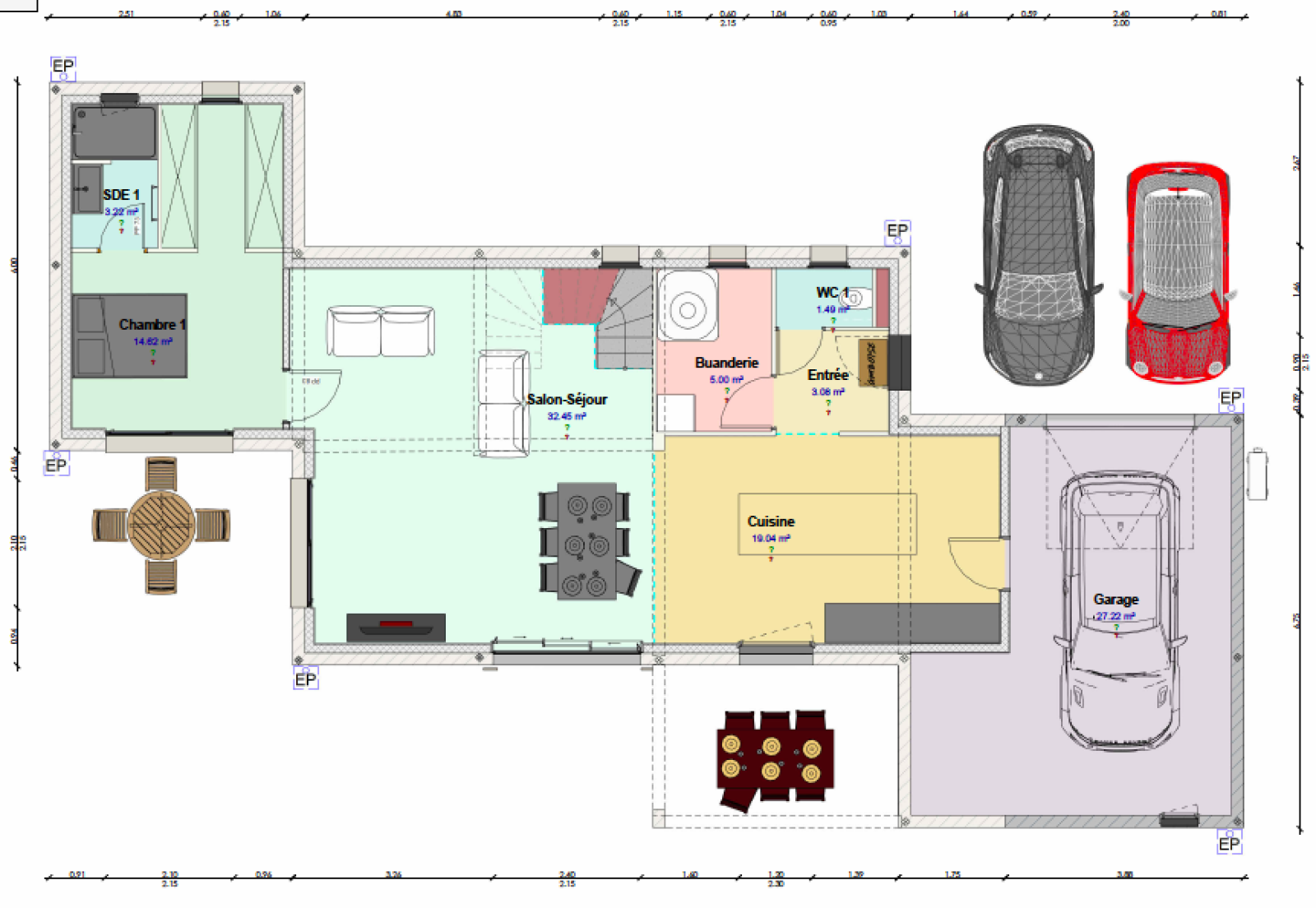
Visuels d'un projet de construction possible sur ce terrain portant sur une maison de 121m2 + garage.

Contact: Alexis Verbrugge 06/01/32/93/48

TRAD_ZEPHYR_Caracteristique TRAD_ZEPHYR_Valeurs
Code postal 69490
surface terrain 791 m²
TRAD_ZEPHYR_Caracteristique TRAD_ZEPHYR_Valeurs
Prix de vente 130 000 €
Les honoraires d'agence seront intégralement à la charge du vendeur  
Contacter pour ce bien
L'agence
Téléphone 04 69 84 15 15
Adresse
19 rue des Rosiéristes 69410 Champagne-au-Mont-d'Or

* Champ obligatoire

Les informations recueillies sur ce formulaire sont enregistrées dans un fichier informatisé par La Boite Immo agissant comme Sous-traitant du traitement pour la gestion de la clientèle/prospects de l'Agence / du Réseau qui reste Responsable du Traitement de vos Données personnelles. La base légale du traitement repose sur l'intérêt légitime de l'Agence / du Réseau. Elles sont conservées jusqu'à demande de suppression et sont destinées à l'Agence / au Réseau. Conformément à la loi « informatique et libertés », vous disposez des droits d’accès, de rectification, d’effacement, d’opposition, de limitation et de portabilité de vos données. Vous pouvez retirer votre consentement à tout moment en contactant directement l’Agence / Le Réseau. Consultez le site https://cnil.fr/fr pour plus d’informations sur vos droits. Si vous estimez, après avoir contacté l'Agence / le Réseau, que vos droits « Informatique et Libertés » ne sont pas respectés, vous pouvez adresser une réclamation à la CNIL. Nous vous informons de l’existence de la liste d'opposition au démarchage téléphonique « Bloctel », sur laquelle vous pouvez vous inscrire ici : https://www.bloctel.gouv.fr Dans le cadre de la protection des Données personnelles, nous vous invitons à ne pas inscrire de Données sensibles dans le champ de saisie libre.
Ce site est protégé par reCAPTCHA, les Politiques de Confidentialité et les Conditions d'Utilisation de Google s'appliquent.

Découvrir nos outils